
提升丨市政盾构知识专题培训发布日期:2018-03-28
|
3月24日,公司邀请盾构专家对公司员工进行市政盾构知识专题培训讲座。上午,老师给大家讲解了盾构机操作使用过程的有关知识及注意事项。为了提高培训效果,使培训形式多元化,本次活动以培训加分组讨论相结合。
在下午的讨论中,培训人员针对讲师提出的问题进行了激烈的讨论,各组代表分别阐述了每组的讨论成果,并且对盾构技术提出自己的问题和见解。 通过本次培训大家纷纷表示受益匪浅,对盾构知识有了一定的了解。 在未来我们将一步一个脚印,以崭新的姿态,迎接新的挑战!
△遇到疑问,积极提问
△大家闹热讨论问题的场景
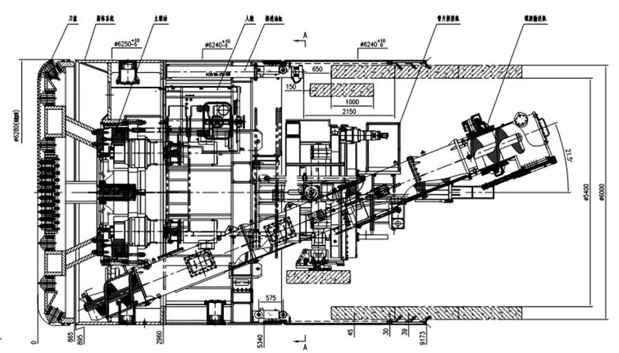
△各组代表积极阐述 盾构小知识 盾构机作为隧道掘进设备必须保持良好的安全运行与备用状态,才能更有效地发挥设备的效率,形成最为全面合理的掘进运行方式。为保证这种良好的状态必须通过正确操作、以及利用适宜的润滑剂等进行充分的润滑和维护,才能防止各种不正常故障的出现。延长盾构的使用寿命。 维护保养工作是按照土压平衡盾构机的各主要组成系统给出的,按照各种以时间间隔和部件类型分类的表格中所列要求,进行维护保养工作。
|